4-к квартира, 73.6 м², 2/5 эт.

4 000 000руб.

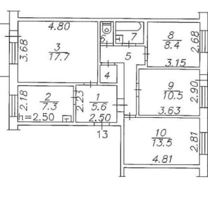
Характеристики

  • Общая площадь: 73.6 м²
  • Этаж: 2
  • Комнат в квартире: 4
  • Жилая площадь: 50.1 м²
  • Тип дома: Кирпичный
  • Площадь кухни: 7.3 м²
  • Этажей в доме: 5

Описание

Продам теплую квартиру улучшенной планировки, 2 этаж 5-этажного кирпичного дома, с/у раздельный, 2 балкона, все комнаты отдельные, окна выходят на две стороны: во двор и на сквер, окна пластиковые. Продажа от собственника.

Адрес

Кемеровская область, Новокузнецк, проспект Курако, 37А


Сеть городских порталов: Купить квартиру в Иваново